一、项目概况与招标范围
1.1项目概况
项目地点:建设地点为华中师范大学南湖校区内
建设规模:
南湖实验基地前身为学校食堂及体育学院武术、乒乓球馆,现状电缆已超过使用年限,且不能满足改造后的用电需求,本项目根据南湖实验基地项目实际需求,新增电缆通道建设,由南湖食堂配电房接至南湖实验基地,约480米,以满足南湖实验基地项目的用电需要。
1.2招标范围
1.2.1 招标范围:
新建电缆通道:对华中师范大学南湖实验基地电缆通道工程,新建电缆通道,电缆通道由南湖食堂配电房至南湖实验基地,建设内容包括新建电缆沟、新建电缆管群、新建顶管、拖管施工等。
电缆通道路径长度(m) |
|
480 |
利用利用地形修建电缆沟 |
利用现状草坪埋管(草坪破坏及恢复100平方米,6*DN100管群) |
顶管、拖管施工(2*DN150PE管) |
电缆人孔井,中型直通混凝土人孔井2.规格:1*1*1m3.做法:详见图集07SD101-8-20、21214. |
|
电力电缆头(4个) 1.名称:五芯干包式电缆终端头制作安装 2.型号:4*120+1*70 3.电压等级(kV):1KV |
|
电力电缆头(2个) 1.名称:五芯干包式电缆终端头制作安装 2.型号:4*70+1*35 3.电压等级(kV):1KV |
|
电力电缆头(4个) 1.名称:五芯干包式电缆终端头制作安装 2.型号:4*50+1*25 3.电压等级(kV):1KV |
|
送配电装置系统(5个) 1.名称:送配电装置系统调试 2.电压等级(kV):1KV |
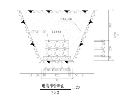
电缆排管断面图:
1.2.2 标段划分:1个标段
1.2.3 计划工期:15日历天。
1.2.4 投标控制价26.8万元。
2、投标人资格要求
本次招标要求投标人须具备:
2.1投标人必须是在中华人民共和国境内注册,并持有工商行政管理部门核发的法人营业执照的独立法人,具有相关施工资质。
2.2近两年来投标人没有重大工程质量问题,在经营活动中没有重大违法记录。
3、结算方式:
据实结算。结算依据湖北省2018年发布的《湖北省房屋建筑与装饰工程消耗量定额及全费用基价表》、《湖北省市政工程消耗量定额及全费用基价表》等相关定额,按定额计价方式结算,取费按2018年《湖北省建筑安装工程费用定额》。材料价格按施工期间当月份武汉市公布的工程材料信息价格为结算依据。工程结算审计价超过控制价按控制价结算;结算审计后不足控制价的按审计价结算。
4、评标办法:
根据各家所报结算价(审计后)让利点、业绩、工期等因素,综合评定。
5、质量要求
质量目标:合格。质保期:2年
6、报价时间及工期要求:
投标文件于2023年10月2日12时前交至基建处,联系人:黄老师 电话:027-67867117
二、华中师范大学南湖实验基地电缆通道工程投标人资质条件、能力和信誉要求
项目 |
要求 |
备注 |
资质 条件 |
投标人具备下列施工资质:②施工资质:建设行政主管部门颁发有效的建筑工程施工总承包乙级及以上资质(原建筑工程施工总承包三级及以上资质有效),并持有有效的安全生产许可证。 |
|
财务 要求 |
投标人近三年(2020、2021、2022年)财务状况良好,(提供经会计师事务所审计的财务审计报告) |
|
业绩 要求 |
投标人近3年至今至少承担过“一项工程造价不低于20万元的建筑工程或房屋维修改造业绩”(业绩以竣工验收时间为准。须提供相关中标通知书、合同、工程竣工验收合格证明); |
|
信誉 要求 |
1.没有被依法暂停或取消投标资格; 2.没有被责令停产停业、暂扣或者吊销许可证、暂扣或者吊销执照; 3.没有进入清算程序,或被宣告破产,或其他丧失履约能力的情形; 4.在最近三年内没有发生重大工程质量问题; 5.没有被工商行政管理部门在“国家企业信用信息公示系统”( www.gsxt.gov.cn)中列入严重违法失信企业名单; 6.没有被最高人民法院在“信用中国”网站(www.creditchina.gov.cn)列入失信被执行人名单; 7.在近三年内投标人或其法定代表人、拟委任的项目经理没有行贿犯罪行为; 8.不存在法律法规或投标人须知前附表第1.4.3(19)目规定的不得存在的其他情形。 |
|
|
岗位 |
资格要求 |
数量 |
|
项目 经理 资格 |
项目 经理 |
具备建筑工程二级或以上注册建造师,具有有效的安全生产考核合格证(B证),且未同时担任其他在建的建设工程项目(需提供无在建承诺书)。 |
1人 |
|
|
施工 管理 |
持有施工员岗位培训考核合格证书。 |
1人 |
|
质量 管理 |
持有质量员岗位培训考核合格证书。 |
1人 |
|
安全 管理 |
持有有效的安全生产考核合格证书(C证)。 |
1人 |
|
材料管理 |
持有有效注册材料员证书 |
1人 |
|
资料 管理 |
持有资料员岗位培训考核合格证书。 |
1人 |
|
/ |
/ |
/ |
|
项目管理机构 主要人员 |
1. 项目管理机构主要人员不得相互兼职。 2. 均应当在投标人处注册执业或岗位登记,且社会保险缴费单位应是投标人。 |
|
施工机械设备要求 |
满足项目需要 |
|
其他要求 |
(一)基本要求 1、以上人员需提供本单位劳动合同、近3个月社保证明及相关证件); 2、保密协议:招标人在本次招标过程中所提供的项目前期资料仅作为投标使用,投标人须自行承诺不外泄或作为它用。若因为相关资料的泄密对招标人造成了损失,投标人须承诺相应的法律后果。投标人在投标时须将法人代表签字并盖单位公章的保密承诺书扫描上传至投标文件中。 |
|
南湖实验基地新建电缆通道工程报价函
项目 |
内容 |
投标单位名称(联系电话) |
|
据实结算价(审计后)让利点 |
|
质量标准 |
|
工期(日历天) |
|
备注 |
|
投标单位(盖章):
法定代表人或其委托代理人(签字或盖章):
日期: 2023年 月 日